- 7 Grundstücke als Doppelhaushälfte gegen Festpreis
- 4 Grundstücke als Einfamilienhaus gegen Festpreis
- 1 Grundstück als Mehrfamilienhaus gegen Festpreis
Die Details zum Grundstück entnehmen Sie bitte den unten beigefügten Exposés.
Vergabemodelle sowie die Grundstückspreise stehen weiter unten auf der Internetseite zum Download zur Verfügung.
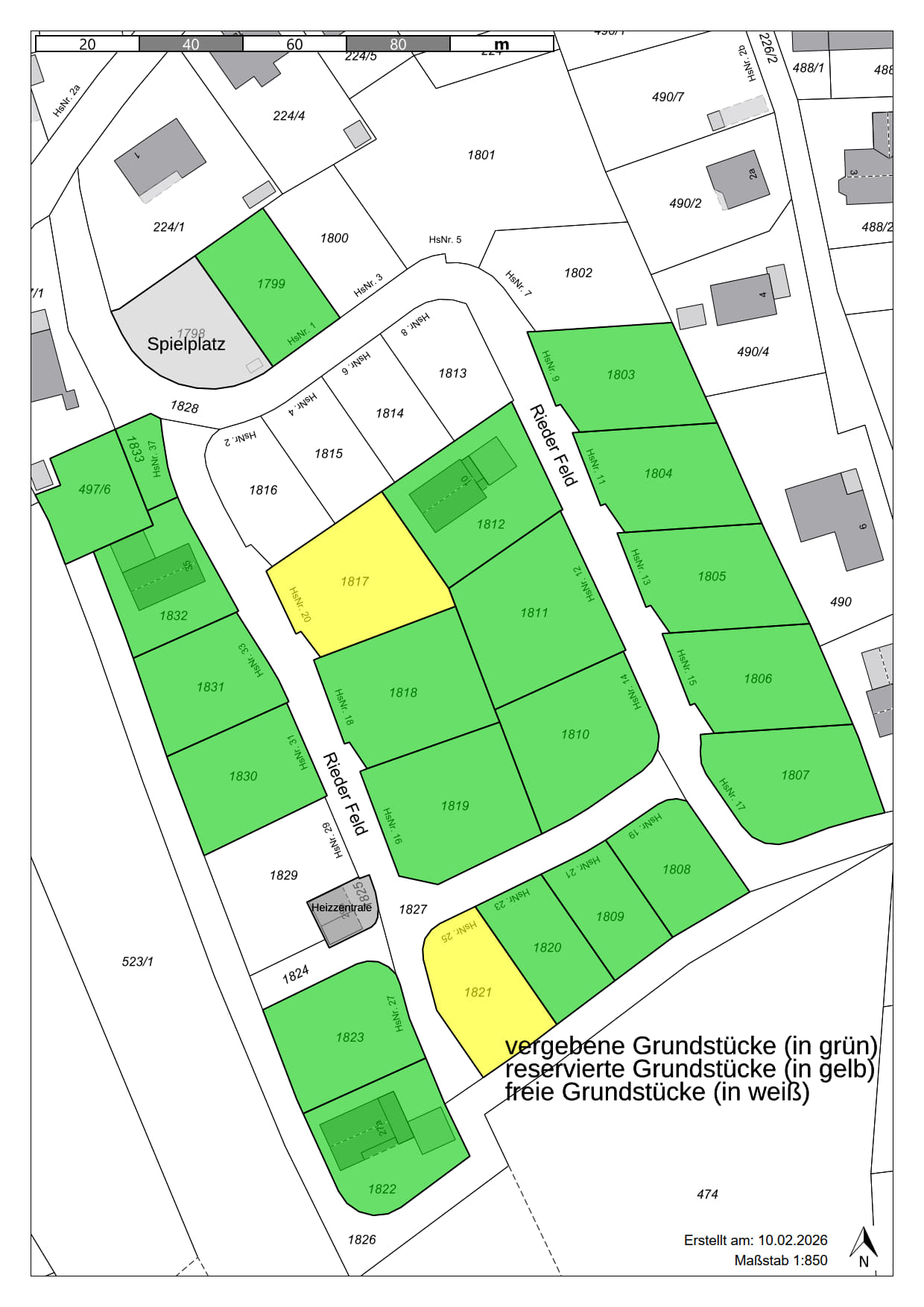
Die Grundstücke werden im Freien Modell vergeben. Die Entscheidung zur Vergabe trifft der Gemeinderat in nicht-öffentlicher Sitzung. Eine vorläufige Reservierung kann jedoch bereits innerhalb weniger Tage nach Bewerbungseingang erfolgen.
Für das Baugebiet besteht ein Bauzwang von fünf Jahren für die Bezugsfertigkeit der Wohngebäude ab Kaufdatum. Die Erschließung des Baugebietes erfolgt über ein gemeindeeigenes Nahwärmenetz, welches über eine Heizzentrale von einem Contractor mit Hackschnitzel betrieben wird. Die Abrechnung der jährlichen Heizkosten erfolgt durch die Gemeinde.
Mit im Grundstück enthalten ist eine ca. 10 Kubikmeter große Zisterne, Breitbandvorerschließung, sowie Vorerschließung Wasser und Abwasser. Durch die Nutzung regenerativer Energien ist für das Wohngebäude eine Förderung über die KFW möglich. Nähere Informationen: Energieeffizient Bauen oder Kaufen – gefördert von der KfW | KfW.
Darüber hinaus verfügt die Gemeinde Ilmmünster über einen Bauleitfaden der interessierten Baubewerbern unverbindliche Denkanstöße für bewusstes, regionales Bauen geben soll:
Für Rückfragen steht Ihnen das Bauamt unter bauamt@ilmmuenster.de oder telefonisch unter 08441/8073-16 sowie Ihr Bürgermeister gerne zur Verfügung.
|
vergebene Grundstücke Rieder Feld ![]()
|
![]() |

Vergabemodelle und Bewerbungs-/antragsformulare
Bewerbungsformular für Grundstücke Rieder Feld ab 30.09.2025
Baugrundgutachten vom 04.09.2019
Exposés
Haus-Nr. 09












